X
NED
23°
PON
20°
TOR
21°
NEKtemperatura 10,0 °Cvlažnost 85,5 %veter 1,74 m/stlak 998 mbarstopnja doze 89,1 nSv/h
SAVA65,0 m³/s pretoktemperatura 14,0 °CKRŠKOtemperatura 11,1 °Cvlažnost 77,9 %veter 2,02 m/sstopnja doze 73,4 nSv/h
Vnesi kodo za adwords...

Na območju pri avtobusni postaji v Brežicah načrtujejo nov trgovski center, podobnega po vzoru krškega centra na vstopu v mesto pri krožišču pred Žadovinkom.

Vnesi kodo za adwords...

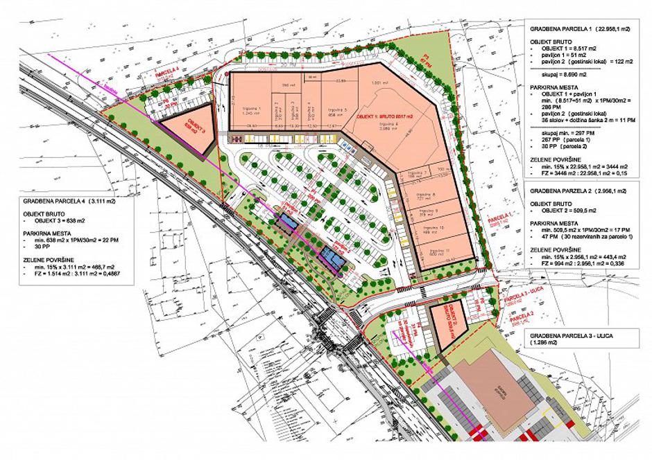
Na vzhodnem delu Brežic, ob Cesti svobode, poteka gradnja novega trgovskega središča, ki bo zajemalo približno 28.100 kvadratnih metrov. Investitor, ljubljanska družba MA Rho, ki jo vodi Andreas Messner iz Celovca, je ocenil vrednost naložbe na približno 22 milijonov evrov. Trgovski center bo zgrajen do konca leta 2026 in bo ponujal okoli 9.700 kvadratnih metrov najemnih površin. V središču bo 17 slovenskih in mednarodnih najemnikov, med katerimi bo tudi Spar Slovenija. Poleg trgovin s prehrano, obutvijo, tekstilom, drogerijo in izdelki za male živali, bo v kompleksu tudi gostinski lokal s pokrito teraso. Zasnova prostora vključuje javno zunanjo ploščad ob Cesti svobode, ki bo obogatena z drevesi in zelenjem, kar bo omogočilo prijetno okolje za obiskovalce.

 

Ob Atletskem stadionu in pumptrack stezi bodo potekala gradbena dela

 

Občina Brežice je postavila jasne pogoje glede zunanje ureditve, saj je vztrajala, da se del prostora nameni javnim in zelenim površinam, namesto parkirišč. V načrtu so tudi kolesarske steze, dostopne ceste in komunalna infrastruktura, ki jo bodo po zaključku prevzeli občinski organi. Gradnja, ki vključuje dva paviljona in večji trgovski objekt, bo pomembno prispevala k izboljšanju mestnega središča in povečanju gospodarske aktivnosti v Brežicah.

nacrt brezice

 

Vir: Dolenjski List, Zurnal 24

Vnesi kodo za adwords...
Nedelja
Delno oblačno
22.6°C / 9.1°C
Veter: 19.1 km/h
Ponedeljek
Oblačno
20.4°C / 8.6°C
Veter: 14.2 km/h
Torek
Oblačno
21°C / 6.3°C
Veter: 11.2 km/h
Sreda
Dež
14.1°C / 8.2°C
Veter: 10.6 km/h

Kamere v Posavju

  • kostak

     

    nek

     

    fakulteta za energetiko logo siv 1

     

    avtoline

O nas

 

Spletno mesto ePosavje združuje vse Posavce od blizu in daleč. Bi želeli objaviti novico, zapis, fotografije? Pišite nam na Ta e-poštni naslov je zaščiten proti smetenju. Potrebujete Javascript za pogled..

Elektronski medij ePosavje je vpisan v razvid medijev, ki ga vodi Ministrstvo za kulturo, pod zaporedno številko 1243.

 

Poiščite nas tudi na

 

 IN YT X

Imate zanimivo vsebino za objavo?

Pišite nam!